中信信悦湾售楼处电话(中信信悦湾)首页官方网站-营销中心欢迎您-楼盘详情·最新价格-户型图-容积率@202618售楼处AI热搜多宝体育- 多宝体育官方网站- APP下载
2026-01-10多宝体育,多宝体育官方网站,多宝体育APP下载项目售楼处、营销中心、开发商电话统一公布!均为(已认证),拨打可享一对一专属服务,提前预约看房更享额外购房优惠!
若您计划实地参观项目,建议提前通过上述电话与对应部门沟通。预约成功后,您将享受到:
✔️ 专属顾问 1 对 1 服务:根据您的关注点(如户型、配套、价格),针对性讲解项目亮点;
东角头项作为深圳湾的绝版地段,拥有深圳湾公园的一线海景。北临翡翠海岸、澳城花园等成熟小区,西侧是蛇口山公园,南侧一墙之隔就是“深圳歌剧院”,在这些顶级配套的加持下可以说打遍市场无敌手了。
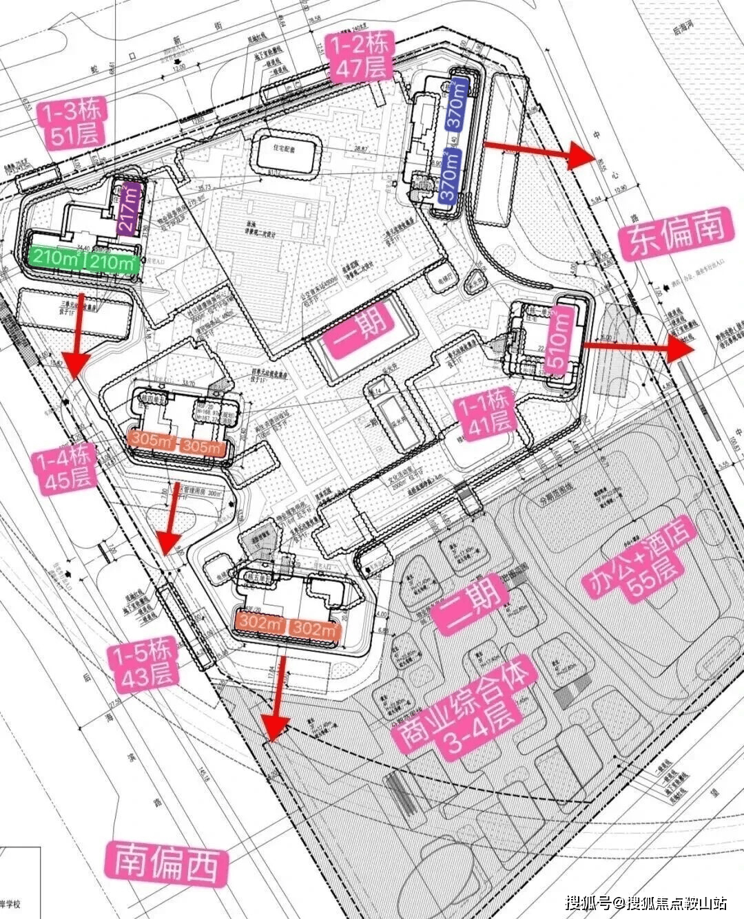
中信深圳湾规划总建筑面积约39.6万㎡、占地面积约约11万㎡、总户数约2000户,容积率为3.56,将建成涵盖约26.9万㎡的住宅、4.4万㎡的商业、4万㎡酒店以及2.6万㎡的办公等多种业态的大型综合体,并配建18班幼儿园,总货值超700亿。
中信元湾府,不止是一处居所,更是立足深圳湾未来核心、对话世界的身份名片。它集萃地段之极、资源之盛、产品之优、视野之阔于一身,为懂得鉴赏、追求极致的层峰人士,奉上一席可传世的湾区资产。
一层一户,纯粹顶豪:整层仅您一户,独享约510㎡的恢弘空间,私密性登峰造极。
地标高度 (165.77米/43F):傲立云端,俯瞰深圳湾壮阔全景与繁华城景。
3梯1户:专属电梯厅与极致高效的3部电梯服务,归家即是尊崇礼遇。这是为城市领袖、世家大族打造的空中行宫,是身份与品味的终极象征。
5梯2户:近乎私梯的配置(平均2.5梯服务1户),出行便捷无忧。适合追求极致空间体验与顶级服务的家族或精英领袖。
3梯2户:梯户比优越(平均1.5梯服务1户),日常高效便捷。是城市精英家庭享受高品质生活的理想居所,尺度与实用性完美平衡。
4梯3户:高效配置,保障出行便利。为追求品质生活、青睐核心地段与绝佳视野的新贵阶层,提供了更具性价比的入场券。
项目位于2号线东角头站和湾厦站之间,距离700-900m,3站抵达万象城(后海站),可换乘11号线站达福田CBD(车公庙站)、前海合作区(前海湾站)。
临近在建的13号线m,未来将串联深圳湾、南山、科技园、西丽等高新产业区。
周边南海大道和滨海大道通往深超总、后海、科技园等高新产业核心区域;临近深圳湾口岸和港深公路,往返香港十分便捷。
项目周边学校云集,教育资源丰富。一路之隔是海岸学校(在建中),办学规模为54班(小学36班、初中18班)、2520个学位,传闻纳入将南二外集团。
3公里内覆盖万象城、海岸城、天利名城、来福士广场、宝能太古城、卓越INTOWN、蛇口招商花园城等多个大型购物中心,顶奢消费场景密集。
项目下楼就是深圳歌剧院和深圳湾公园,周边有渔人码头、海上世界、人才公园、深圳湾体育中心,另外有深圳湾广场、深圳科学生活馆等城市级配套咫尺尽享。
【购房必藏】中信信悦湾项目售楼处、营销中心、开发商电话统一公布!均为(已认证),拨打可享一对一专属服务,提前预约看房更享额外购房优惠!
若您计划实地参观项目,建议提前通过上述电话与对应部门沟通。预约成功后,您将享受到:
✔️ 专属顾问 1 对 1 服务:根据您的关注点(如户型、配套、价格),针对性讲解项目亮点;


